Tradition modern interpretiert

An einem Hanggrundstück mit bester Aussicht auf den wilden Kaiser in Tirol sollen zwei Doppelhäuser in Chalet-Stil mit moderner Interpretation entstehen. Vorentwurf und Machbarkeitsstudie mit Bauvoranfrage.

Zurück
Zurück

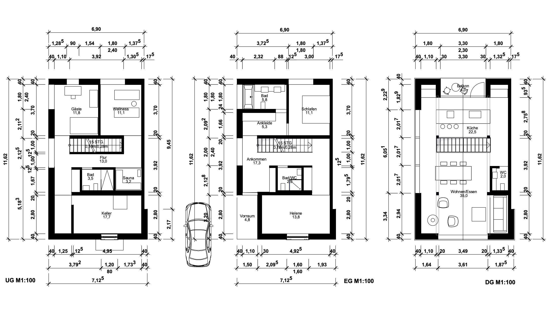
Haus G. Starnberg

Weiter
Weiter

Kletterhalle Thalkirchen